Acasă / Imobile în vânzare /Durlești Cartușa
Penthouse, Durlești, CARTUȘA
178 m²
Camere: 4
Băi: 2
Nivel: 8/9
161 000 €
904 €/m²
178 m²
Camere: 4
Băi: 2
Nivel: 8/9
Proprietăți
Regiune
Suburbii, Durlești
Adresa
Cartușa
Construcție
Nouă
Stare
Versiune albă
Suprafață
178.00
Camere
4
Nivel
8/9
Băi
2
Descriere
Spre vânzare apartament de tip Penthouse amplasat în or. Durlești, str. Cartușa.
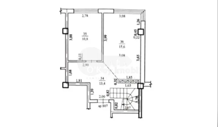
Imobilul dispune de o suprafață generoasă de 178 mp, (cadastral 146,6 mp terasa fiind inclusă, având coeficient 0,3).
Este situat la etajul 8 și 9 al complexului Prim Costruct.
Compartimentare funcțională pe 2 niveluri:
Nivelul 1: bucătărie, dormitor, bloc sanitar, antreu;
Nivelul 2: 3 camere, bloc sanitar, garderobă, terasa generoasă (45 mp).
Caracteristici:
– varianta albă;
– geamuri termopane;
– încălzire autonomă;
– comunicații conectate.
* Bloc dat în exploatare!!!
Amplasare reușită. În apropiere de: Linella, Rogob, Ferma cu origini, Policlinica Nr. 1, Liceul Teoretic ,,Orizont ", Grădinița - Creșă Nr.2, Grădinița "Ghetuțele Vesele".
Imobilul dispune de o suprafață generoasă de 178 mp, (cadastral 146,6 mp terasa fiind inclusă, având coeficient 0,3).
Este situat la etajul 8 și 9 al complexului Prim Costruct.
Compartimentare funcțională pe 2 niveluri:
Nivelul 1: bucătărie, dormitor, bloc sanitar, antreu;
Nivelul 2: 3 camere, bloc sanitar, garderobă, terasa generoasă (45 mp).
Caracteristici:
– varianta albă;
– geamuri termopane;
– încălzire autonomă;
– comunicații conectate.
* Bloc dat în exploatare!!!
Amplasare reușită. În apropiere de: Linella, Rogob, Ferma cu origini, Policlinica Nr. 1, Liceul Teoretic ,,Orizont ", Grădinița - Creșă Nr.2, Grădinița "Ghetuțele Vesele".
Alte caracteristici
Balcon
Geamuri termopan
Grădiniţă
Imobil nou
Încălzire autonomă
Interfon
Ascensor
Internet
Școală
Supermarket
Teren de joacă
Cablu TV
Uşă blindată
Linie telefonică
Atenție! Clienții care aleg să cumpere prin O’Key Imobil se bucură de o gamă completă de servicii profesionale, oferite fără niciun cost suplimentar:
- Analiză corectă a pieței, pentru a ști exact valoarea reală a proprietății dorite;
- Verificare juridică atentă, cu pregătirea tuturor actelor necesare pentru o tranzacție sigură;
- Spațiul perfect pentru diverse tipuri de activități comerciale, logistică, cât și producere etc.
Vreau apartament în ipotecă!
Avem peste 745.000 de apartamente, oficii și terenuri.

























































