Acasă / Imobile în vânzare /Durlești Cartușa
Penthouse, Durlești, CARTUȘA
220 m²
Camere: 4
Băi: 2
Nivel: 8/9
178 000 €
809 €/m²
220 m²
Camere: 4
Băi: 2
Nivel: 8/9
Proprietăți
Regiune
Suburbii, Durlești
Adresa
Cartușa
Construcție
Nouă
Stare
Versiune albă
Suprafață
220.00
Camere
4
Nivel
8/9
Băi
2
Descriere
Spre vânzare apartament de tip Penthouse amplasat în or. Durlești, str. Cartușa.
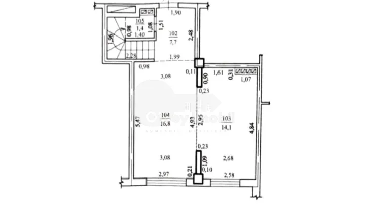
Imobilul dispune de o suprafață generoasă de 220 mp, (cadastral 162 mp terasa fiind inclusă, având coeficient 0,3).
Este situat la etajul 8 și 9 al complexului Prim Costruct.
Compartimentare funcțională pe 2 niveluri:
Nivelul 1: bucătărie, dormitor, bloc sanitar, antreu;
Nivelul 2: 3 camere, bloc sanitar, garderobă, terasa generoasă (90 mp).
Caracteristici:
– varianta albă;
– geamuri termopane;
– încălzire autonomă;
– comunicații conectate.
* Bloc dat în exploatare!!!
Amplasare reușită. În apropiere de: Linella, Rogob, Ferma cu origini, Policlinica Nr. 1, Liceul Teoretic ,,Orizont ", Grădinița - Creșă Nr.2, Grădinița "Ghetuțele Vesele".
Imobilul dispune de o suprafață generoasă de 220 mp, (cadastral 162 mp terasa fiind inclusă, având coeficient 0,3).
Este situat la etajul 8 și 9 al complexului Prim Costruct.
Compartimentare funcțională pe 2 niveluri:
Nivelul 1: bucătărie, dormitor, bloc sanitar, antreu;
Nivelul 2: 3 camere, bloc sanitar, garderobă, terasa generoasă (90 mp).
Caracteristici:
– varianta albă;
– geamuri termopane;
– încălzire autonomă;
– comunicații conectate.
* Bloc dat în exploatare!!!
Amplasare reușită. În apropiere de: Linella, Rogob, Ferma cu origini, Policlinica Nr. 1, Liceul Teoretic ,,Orizont ", Grădinița - Creșă Nr.2, Grădinița "Ghetuțele Vesele".
Atenție! Clienții care aleg să cumpere prin O’Key Imobil se bucură de o gamă completă de servicii profesionale, oferite fără niciun cost suplimentar:
- Analiză corectă a pieței, pentru a ști exact valoarea reală a proprietății dorite;
- Verificare juridică atentă, cu pregătirea tuturor actelor necesare pentru o tranzacție sigură;
- Spațiul perfect pentru diverse tipuri de activități comerciale, logistică, cât și producere etc.
Vreau apartament în ipotecă!
Avem peste 745.000 de apartamente, oficii și terenuri.






























































