Acasă / Imobile în vânzare /Ciocana Teilor
Townhouse, CIOCANA
220 m²
Camere: 5
Nivel: 3
345 000 €
1568 €/m²
220 m²
Camere: 5
Nivel: 3
Proprietăți
Regiune
Chișinău
Adresa
Teilor
Suprafață
220.00
Camere
5
Nivel
3
Construcție
Nouă
Stare
Versiune gri
Descriere
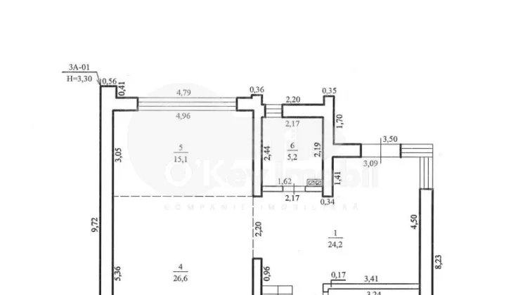
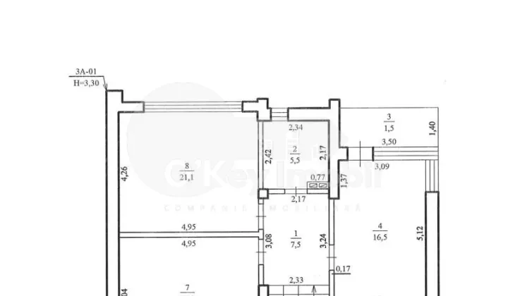
Vă prezentăm spre vânzare o locuință modernă, spațioasă, desfășurată pe 3 nivele, cu suprafața locativă de 190,7 mp (suprafața totală de 220 mp), amplasat în sectorul Ciocana, str. Teilor.
Compartimentarea este practică și bine organizată:
Nivelul 1 – living generos, bucătărie și bloc sanitar, cu ieșire directă din bucătărie și living către terasa din spate.
Nivelul 2 – 3 dormitoare luminoase, 2 blocuri sanitare, 2 balcoane și coridor spațios.
Nivelul 3 – bloc sanitar, spațiu ce poate fi amenajat ca living suplimentar sau dormitor și acces la terasă.
Caracteristici:
- Construcție din cărămidă roșie Brixton;
- Izolare termică de 10 cm;
- Ventilare în fiecare cameră;
- Geamuri panoramice cu 2 rânduri de sticlă;
- Variantă sură;
- Parcare pentru 2 mașini;
- Terasă în spate cu ieșire din bucătărie și living;
- Construcția este dată în exploatare;
- Conectată la toate comunicațiile.
O oportunitate excelentă pentru cei care își doresc o casă modernă, bine construită și pregătită pentru personalizare.
Compartimentarea este practică și bine organizată:
Nivelul 1 – living generos, bucătărie și bloc sanitar, cu ieșire directă din bucătărie și living către terasa din spate.
Nivelul 2 – 3 dormitoare luminoase, 2 blocuri sanitare, 2 balcoane și coridor spațios.
Nivelul 3 – bloc sanitar, spațiu ce poate fi amenajat ca living suplimentar sau dormitor și acces la terasă.
Caracteristici:
- Construcție din cărămidă roșie Brixton;
- Izolare termică de 10 cm;
- Ventilare în fiecare cameră;
- Geamuri panoramice cu 2 rânduri de sticlă;
- Variantă sură;
- Parcare pentru 2 mașini;
- Terasă în spate cu ieșire din bucătărie și living;
- Construcția este dată în exploatare;
- Conectată la toate comunicațiile.
O oportunitate excelentă pentru cei care își doresc o casă modernă, bine construită și pregătită pentru personalizare.
Alte caracteristici
Geamuri termopan
Încălzire autonomă
Supermarket
Uşă blindată
Atenție! Clienții care aleg să cumpere prin O’Key Imobil se bucură de o gamă completă de servicii profesionale, oferite fără niciun cost suplimentar:
- Analiză corectă a pieței, pentru a ști exact valoarea reală a proprietății dorite;
- Verificare juridică atentă, cu pregătirea tuturor actelor necesare pentru o tranzacție sigură;
- Spațiul perfect pentru diverse tipuri de activități comerciale, logistică, cât și producere etc.
Vreau apartament în ipotecă!
Avem peste 745.000 de apartamente, oficii și terenuri.

















































